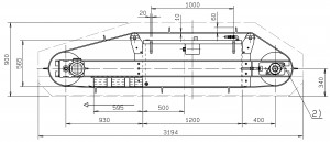
Magnetseparator FES247054
Magnetseparator FES247054
Elektromagnetischer Überbandmagnetscheider zur Abscheidung von Fremdeisenteilen aus Schüttgütern aller Art zur Rückgewinnung von Eisenteilen aus Schlacken, Haus- und Industriemüll, etc.
Sie dienen darüber hinaus zum Schutz von Brechern, Förderbändern, Sieben oder Mühlen vor Beschädigungen durch Fremdeisenteile.
Elektromagnetische Überbandmagnetscheider sind wahlweise mit Austragsband oder als Aushebemagnet verfügbar. Austragsbänder werden dort verwendet, wo Fremdeisen laufend anfällt bzw. der Austrag automatisch erfolgen soll.
Besonders vorteilhaft sind elektromagnetische Überbandscheider bei hohen Aufhängehöhen oder dort, wo ein sehr starkes Magnetfeld gefordert ist.
Vorteile:
- höchste Magnetzugkräfte bei geringem Energieverbrauch
- Öl-gekühlte Spule für beste Wärmeableitung
- tiefwirkendes Magnetfeld
- einfache Reinigung, da Magnetfeld abgeschaltet werden kann
- wahlweise mit oder ohne Austragsband verfügbar (automatische oder manuelle Reinigung)
- maßgeschneiderte Lösungen

